Objektart
Adresse
Objektdaten
Informationen
Details
+++ Weitere Bilder und ein exklusives Immobilienvideo auf jablonka-immobilien.de +++
Ankommen, Luft holen, Zukunft gestalten: Im Baugebiet Lehmrade, im Herzen des Naturparks Lauenburgische Seen, entstehen Baugrundstücke für Menschen, die Natur, Ruhe und kurze Wege in die Metropolen der Region miteinander verbinden möchten.
Wälder, Seen und viel Grün prägen die Umgebung von Lehmrade. Einem Ort, an dem junge Familien ihren Platz zum Spielen und Gärtnern finden. Einem Ort, an dem der Wunsch des altersgerechten Bungalows mit pflegeleichtem Garten in Erfüllung geht.
Der geltende Bebauungsplan schafft eine ausgewogene Balance aus Klarheit und Gestaltungsfreiheit. Er sichert ein harmonisches Ortsbild und lässt zugleich genügend Raum für individuelle Lösungen. Großzügige Gartenflächen und moderne Gebäude lassen hier ein wertbeständiges Wohnumfeld entstehen, das nachhaltiges Leben im Einklang mit der Natur ermöglicht.
Gern nennen wir Ihnen die noch verfügbaren Grundstücke, den genauen Erschließungsstand und alle B-Plan-Details (zulässige Bauweise, Maß der Nutzung, Dachformen, etc.) auf Anfrage. Sichern Sie sich jetzt Ihr Baugrundstück in Lehmrade - naturverbunden, ruhig gelegen und bereit für Ihre Ideen.
+++ Weitere Bilder und ein exklusives Immobilienvideo auf jablonka-immobilien.de +++
+++ Weitere Bilder und ein exklusives Immobilienvideo auf jablonka-immobilien.de +++
Gelegen inmitten des Naturparks Lauenburgische Seen und der Metropolregion Hamburg erfreut sich die Gemeinde Lehmrade stetig wachsender Beliebtheit.
Umgeben von 5 Seen und diversen Rad- und Wanderwegen bietet dieses ländliche 500-Einwohner-Idyll Entspannung pur. Und das, ohne auf eine gute Anbindung verzichten zu müssen: Mit dem Auto ist die Hansestadt Hamburg bequem über die A24 in ca. 40 Minuten erreicht. Der Busverkehr ist Teil des HVV-Streckennetzes. In der nahegelegenen Stadt Mölln, welche in ca. 5 Minuten zu erreichen ist, sind nicht nur eine Vielzahl von Schulen, Ärzten und Einkaufsmöglichkeiten ansässig, sondern auch die Bahnverbindung Lübeck Lüneburg. Die Hansestadt Lübeck ist sowohl mit dem Auto als auch mit dem Zug in ca. 35 zu erreichen.
Das Baugebiet selbst liegt unweit des ruhigen Ortskerns, verkehrsberuhigt und in Feldrandlage.
+++ Weitere Bilder und ein exklusives Immobilienvideo auf jablonka-immobilien.de +++
+++ Weitere Bilder und ein exklusives Immobilienvideo auf jablonka-immobilien.de +++
Alle Angaben beruhen auf vom Verkäufer zur Verfügung gestellten Unterlagen. Eine Haftung für die Richtigkeit und Vollständigkeit wird trotz sorgfältiger Prüfung nicht übernommen.
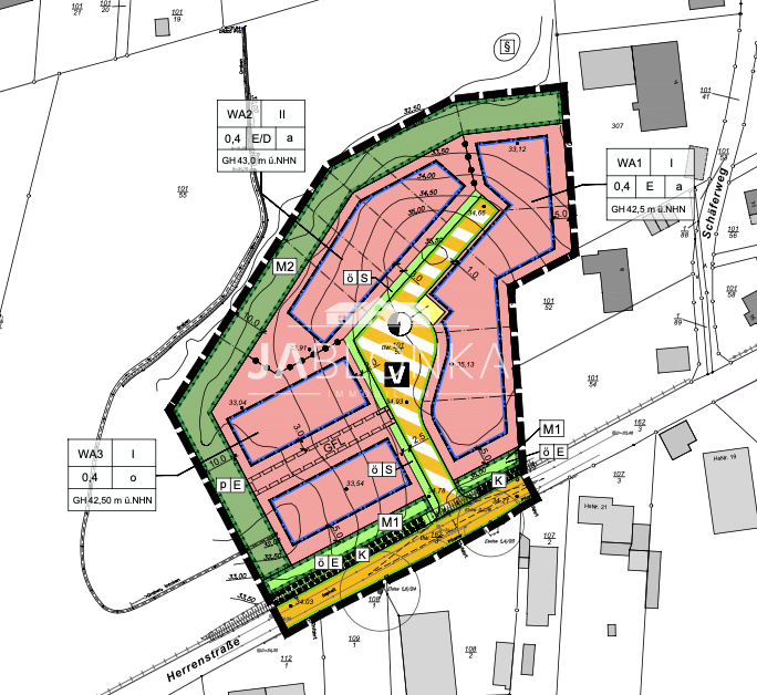
Das ca. 11.755 m² große Neubaugebiet gliedert sich in drei Wohnbereiche mit insgesamt zehn Teilgrundstücken. Die Grundstücke reichen von etwa 420 m² bis ca. 1.819 m² und bieten je nach Zuschnitt Raum für pflegeleichte Bungalowbebauung ebenso wie moderne Familienhäuser mit viel Garten.
Gemäß dem Bebauungsplan ist auf diesem Grundstück eine Bebauung mit Ein- oder Zweifamilienhäusern mit äußerst großzügigen Grundstücken, eine Bebauung mit klassischen Reihenhäusern, oder barrierearme Konzepte in Form von ebenerdigen Zeilenbungalows denkbar.
Weitere Auskünfte und Vorgaben erhalten Sie gern auf Anfrage; maßgeblich bleiben der geltende Bebauungsplan sowie die Regelungen des notariellen Kaufvertrags.
Der Verkauf erfolgt courtagefrei für die Käufer.
+++ Weitere Bilder und ein exklusives Immobilienvideo auf jablonka-immobilien.de +++
Ansprechpartner
Telefax: 00494542838785
tj@my-onoffice.com
Ich bin damit einverstanden, dass mir Karten von Google angezeigt werden. Es gelten die Datenschutzbedingungen von Google (https://policies.google.com/privacy).
Ich bin einverstanden